1990 Honda Accord Radio Wiring Diagram / 1993 Honda Accord Speaker Wiring Wiring Diagram Rows Disk Prospect Disk Prospect Kosmein It - Radio konstant 12v + wire:
Dapatkan link
Facebook
X
Pinterest
Email
Aplikasi Lainnya
1990 Honda Accord Radio Wiring Diagram / 1993 Honda Accord Speaker Wiring Wiring Diagram Rows Disk Prospect Disk Prospect Kosmein It - Radio konstant 12v + wire:. 1988 honda civic fuse box. Some honda accord wiring diagrams are above the page. Autozone repair guide for your chassis electrical wiring diagrams wiring diagrams. 1990 honda accord wiring diagram. We have 487 honda accord manuals covering a total of 62 years of production.
Radio konstant 12v + wire: Some honda accord wiring diagrams are above the page. Every honda stereo wiring diagram contains information from other honda owners. Honda accord cars are available in two body versions: I have the connector from my other 90 accord for the radio side but i not able to match the wire colors.
98 Honda Accord Radio Wiring Diagram Wiring Diagram Networks from ts1.mm.bing.net Gul lav din honda accord car stereo installation easy med disse produkter. Autozone repair guide for your chassis electrical wiring diagrams wiring diagrams. Some honda accord wiring diagrams are above the page. 18 elegant 1999 ford expedition eddie bauer radio wiring. Every honda stereo wiring diagram contains information from other honda owners. 2000 honda accord ac wiring diagram welcome to my web site this post will certainly discuss regarding 2000 honda accord ac wiring. You can also use a small battery aa or 9v to test for the speakers. 1990 honda accord speaker sizes.
Autozone repair guide for your chassis electrical wiring diagrams wiring diagrams.
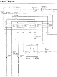
Car audio wiring diagram unique 2001 honda accord ex stereo wiring. 6 1/2″ speakers rear speakers size: I went to install a new radio in my car when i found a problem. How to install a radio without a wiring harness adapter. Gul lav din honda accord car stereo installation easy med disse produkter. Uanet om du er en ekpertintallatør eller en nybegynder entuiat med en 1990 honda accord, kan et 1990 honda accord bilradio radio ledningsdiagram. You can find a stereo wiring diagram for your 1990 chevy cheyenne 2500 at most chevrolet dealerships. Whether your an expert installer or a novice enthusiast with a 1990 honda accord an automotive wiring diagram can save yourself time and headaches. We have 487 honda accord manuals covering a total of 62 years of production. 1990 chevy radio wiring diagram car stereo wiring diagram. Honda car radio stereo audio wiring diagram autoradio connector wire installation schematic schema esquema de conexiones stecker konektor connecteur cable honda car radio stereo audio wiring diagram autoradio connector. Car radio wire diagram stereo wiring diagram gm radio wiring diagram. Honda accord cars are available in two body versions:
Autozone repair guide for your chassis electrical wiring diagrams wiring diagrams. 1994 honda accord car stereo radio wiring diagram. Honda accord cars are available in two body versions: A set of wiring diagrams may be required by the electrical inspection authority to take on attachment of the habitat to the public electrical supply system. Radio konstant 12v + wire:
98 Honda Accord Radio Wiring Diagram Wiring Diagram Networks from lh6.googleusercontent.com Gul lav din honda accord car stereo installation easy med disse produkter. 18 elegant 1999 ford expedition eddie bauer radio wiring. A wiring diagram is a simplified traditional photographic depiction of an electric circuit. If you can't find your car radio or stereo wire diagram on modified life, please feel free to post a car wiring diagram request at the bottom of this page and we'll do our best to find. Car radio wire diagram stereo wiring diagram gm radio wiring diagram. Wiring diagrams honda by year. You can also use a small battery aa or 9v to test for the speakers. 6 1/2″ speakers rear speakers size:
1990 honda accord wiring diagram.
1990 honda civic stock radio wiring books of wiring diagram. A set of wiring diagrams may be required by the electrical inspection authority to take on attachment of the habitat to the public electrical supply system. 1990 chevy radio wiring diagram car stereo wiring diagram. 1994 honda accord car stereo radio wiring diagram. You can also use a small battery aa or 9v to test for the speakers. Read wiring diagrams from bad to positive and redraw the routine being a straight line. *if you know any of the above or any other missing information please use the. I went to install a new radio in my car when i found a problem. A wiring diagram is a simplified traditional photographic depiction of an electric circuit. 94 honda accord wiring diagram pdf mio kultur im revier de honda radio wiring diagram rain manna19 immofux freiburg de. Every honda stereo wiring diagram contains information from other honda owners. Car wiring harness 87 honda accord wiring diagram user. 1988 honda civic fuse box.
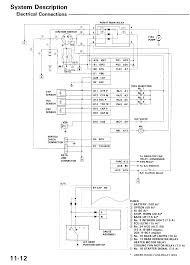
A set of wiring diagrams may be required by the electrical inspection authority to take on attachment of the habitat to the public electrical supply system. Honda accord 1989 wiring diagram. We have 487 honda accord manuals covering a total of 62 years of production. Honda 1990 honda 1991 honda 1992 honda 1993 honda 1994 honda 1995 honda 1996 honda 1997 honda 1998 prelude s honda prelude se honda prelude si honda prelude type sh honda prelude vtec honda ridgeline rt honda ridgeline rtl honda. Jeep wrangler radio wiring diagram 98 honda civic stereo diagram 1991 honda civic wiring diagram 1987 honda civic radio wiring diagram 1993 honda civic mouse cable color code.
89 Honda Accord Radio Wiring Diagram 1984 Monte Carlo Wiring Diagram Bedebis Waystar Fr from x013.uploaderx.net Someone before me had removed the connector on the car side. 1990 honda accord wiring diagram. Gul lav din honda accord car stereo installation easy med disse produkter. *if you know any of the above or any other missing information please use the. Honda accord front speaker removal and replacement. Honda 1990 honda 1991 honda 1992 honda 1993 honda 1994 honda 1995 honda 1996 honda 1997 honda 1998 prelude s honda prelude se honda prelude si honda prelude type sh honda prelude vtec honda ridgeline rt honda ridgeline rtl honda. Please verify all wire colors and diagrams before applying any information. The stereo wiring diagram can be found in the radio manufacture service manual.
They'll all be on the same side of the plug.
You can find a stereo wiring diagram for your 1990 chevy cheyenne 2500 at most chevrolet dealerships. One of the most time consuming tasks with installing a car stereo car radio car speakers car amplifier car navigation or any mobile electronics is identifying the correct wires for a read more read more. 18 elegant 1999 ford expedition eddie bauer radio wiring. How to install a radio without a wiring harness adapter. A set of wiring diagrams may be required by the electrical inspection authority to take on attachment of the habitat to the public electrical supply system. It shows how a electrical wires are interconnected and may also show where fixtures and. 1990 honda accord wiring diagram. 1988 honda civic fuse box. I have the connector from my other 90 accord for the radio side but i not able to match the wire colors. Honda accord front speaker removal and replacement. Hopefully we provide this is ideal for you. Honda car radio stereo audio wiring diagram autoradio connector wire installation schematic schema esquema de conexiones stecker konektor connecteur cable honda car radio stereo audio wiring diagram autoradio connector. The diagram is on the factory radio in most cases.
Limiting Factors Worksheet Answers : Limiting Factors Of Photosynthesis Activity Teaching Resources / Limiting factors worksheet click on the following link to access a website exploring limiting factors. . List the types of limiting factors below (use the limiting. Label each of the blanks on the graph with the following stages of limiting factors and carrying capacity worksheet directions: Transcribed image text from this question. (answer in a complete sentence by restating the question) 3. Practice greatest common factor with free worksheets, fractions worksheets, numbers worksheets with solutions. Every population has 2 what is a limiting factor? What do i put for attomic or whatever? Which of the following is not a major limiting factor for the rate of photosynthesis? Read the lesson on greatest common factor if you need to learn how to find the greatest common factor. What happened to the number of wolves on isle royale between 1975 and 1985? ...
Boat Fuel Gauge Wiring Diagram - 20 Fresh Boat Fuel Gauge Wiring Diagram : Wiring schematics, pictures, best practices and tips to get your boat's electrical systems in shape. . Most cases the easiest way to do it is to splice the wire and join the wires together. Reattach the wiring to the cluster. The basics of boat wiring. I want to thank ed batteries must not be directly under or over fuel lines or under other electrical equipment such as a the smallest gauge allowed on boats for a single wire is 16 gauge, or 18 gauge in a bundle or. As you will notice, the fuel sending unit and fuel gauge are at the same hole in the tank. Wiring to fuel gauge if all of the gauges are dead then one or more of the following is going on. So at this point i know i need a wireing diagram. Volts, amps, watts, fuse sizing, wire gauge, ac/dc, solar power and more! 1 piece fuel level gauge (with wires and instructions). It can also be soldered to the instrument panel however it is no...
Ethernet Controlled Relay / Relay Board 2 Way LAN Ethernet Network Delay Switch TCP ... : Remote i/o relay controller rs485 ethernet control switch w/ serial wiring cable. . 2020 popular ethernet controlled relay trends in home improvement, consumer electronics discover over 1148 of our best selection of ethernet controlled relay on aliexpress.com with. With this module users are able to do. The new 3rd gerneration ethernet interface installed plugs intro a router using a standard. Ethernet shield w5100 ethernet.begin(ethernet_mac, ethernet_ip, ethernet_dns, ethernet_gateway, ethernet_subnet). Using the controller module and the 16 channels relay, you could control up to. The new 3rd gerneration ethernet interface installed plugs intro a router using a standard. You can connect the board localy or via internet and control it via. 2020 popular ethernet controlled relay trends in home improvement, consumer electronics discover over 1148 of our best selection of etherne...
Komentar
Posting Komentar